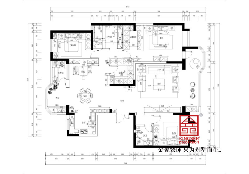
面積:205平米
裝修風格:現代簡約風格
設計師:盧娜

2.主臥空間可以應業主要求變得更敞亮,并增加一個儲物空間來增加空間利用率。
3.餐廳空間十分寬敞,可增加空間利用率。
戶型改造:
1.應業主要求改造了一部分主臥的衛生間,并把女兒房與主臥的衛生間合并。給主、臥內增加了一個衣帽間,使主臥看起來十分大氣。
2.削減了原來衣帽間的位置,改變了門開方向使主臥的走廊更寬敞,并改造為一個儲物間,增加了空間利用率。
3.利用餐廳空間增加了書房,使其得到了更充分的利用,也同時增加了生活的趣味。
更多榮盛華府裝修戶型解析:http://www.oscctv.com/show-14-4-1.html